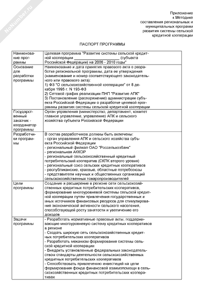
Типовые паспорта